Marcus Thranes vei
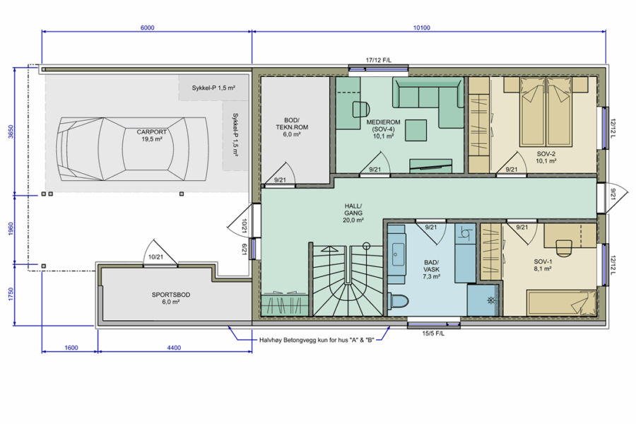
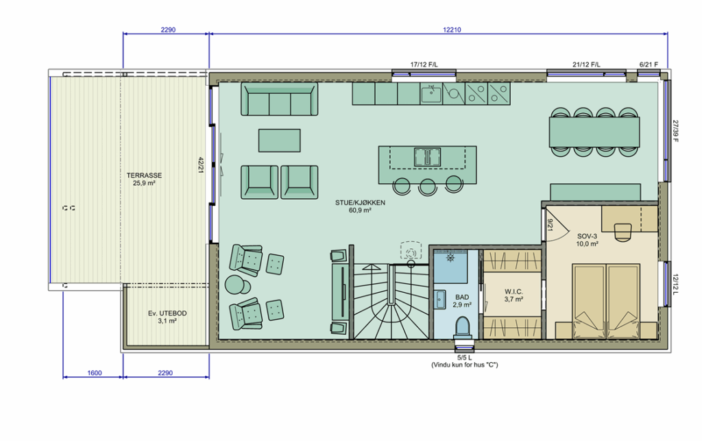
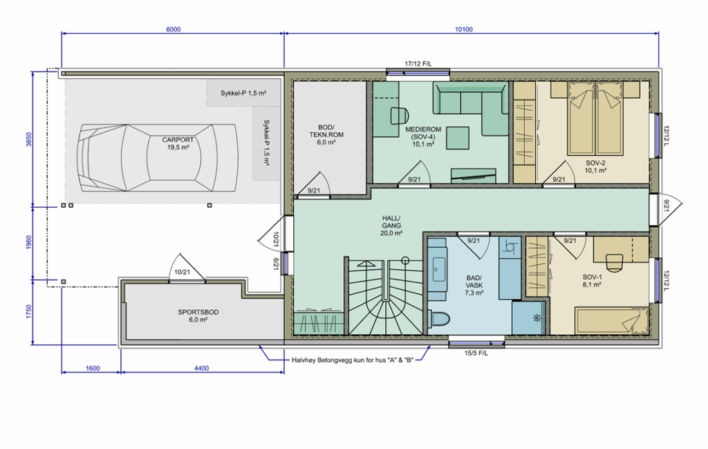
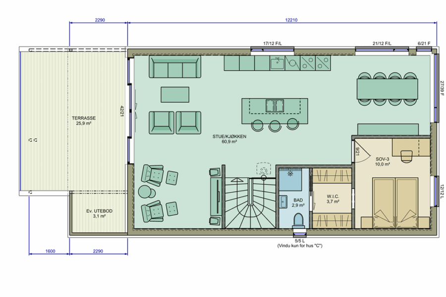
I Marcus Thranes vei kommer tre romslige eneboliger med carport og 4 soverom. Boligene vil være klare for innflytting sommer/høst 2026.
Realiser boligdrømmen – kontakt vår rådgiver
Jørgen Paulsby
- Daglig leder
- 911 70 341
- jorgen.paulsby@fp-bygg.no